Home
Datenschutz
Team
Projekte
Einfamilienhaus
Mehrfamilienhaus
Gewerbe
Sanierung
Innenarchitektur
Stories
Jobs
Kontakt
Impressum
Datenschutz-old-api-cm
+43 5572 200192
EFH D, Fraxern
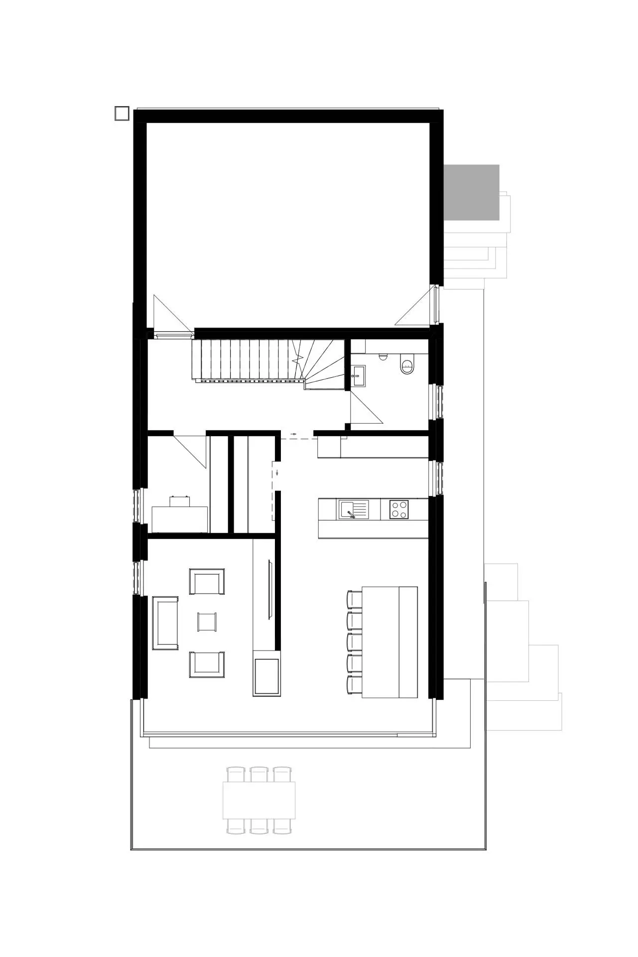
EFH D, Fraxern - Pläne